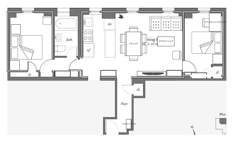
Floorplan

The dimensions are approximate and provided here for rough furniture planning purpose. The exact measurement should be verified by tenants.

Furnitue Plan

Just one example of furniture layout. The apartment is ample enough to realize your creative imagination.